
Mobile Immobilie: Ein Widerspruch in sich?
Ressourcenbewusst handeln durch durchdachte Kreislaufwirtschaft
Rückruf anfordern
Kontaktieren Sie uns direkt. Unser Team ist für Sie da.
Jetzt starten
Kontaktieren Sie uns direkt. Unser Team ist für Sie da.
Downloads
Die wichtigsten Downloads auf einen Blick.
Clusterschulen in Modulbauweise
Welchen Einfluss hat die Covid-19-Pandemie auf die Architektur? Diese Frage beschäftigt Planer und Bauherren derzeit gleichermaßen, stehen sie doch vermehrt vor dem Problem, Gebäude des öffentlichen Lebens – allen voran Büros, Senioren- und Pflegeheime aber auch Schulen – künftig so zu planen, dass diese auch in Bezug auf Infektionskrankheiten krisensicher sind. Eine gute Nachricht dazu gibt es bereits: Um Gebäude flexibel anpassbar, hygienetechnisch hochwertig und damit in viele Richtungen zukunftsstark realisieren zu können, muss das Rad nicht gänzlich neu erfunden werden. Es gibt bereits Systeme, mit denen – anders als beim konventionellen Bauen – schnell auf sich verändernde Nutzungs- und Hygienebedingungen reagiert werden kann: Gebäude in ALHO Modulbauweise!
Im Fokus der Planer-Aufmerksamkeit stehen momentan vor allem die Schulen. Nicht nur weil Schüler und Schülerinnen unter den Auswirkungen Corona-bedingter Schulschließungen besonders leiden, sondern weil die meisten Bestandsschulen auf die aktuellen Anforderungen keine Antworten haben: auf getrennte Zu- und Ausgänge zum Beispiel, einen ausreichenden Abstand zwischen den Sitzplätzen bei voller Klassenstärke, auf wintertaugliche Lüftungsmaßnahmen und nicht zuletzt fehlt oft auch die technische Ausrüstung für praktikable, digitale Lernkonzepte. Bereits zu „normalen“ Zeiten zeigten Deutschlands Schulen viele Mängel.
Nicht umsonst existieren bundesweit inzwischen zahlreiche Schulbauprogramme, die eine schnelle Verbesserung der Missstände ermöglichen sollen. Doch heute, in Zeiten der Pandemie, ist die Investition in leistungsfähige Schulbauten und flexible schulische Infrastruktur dringlicher denn je. Stark steigende Schülerzahlen und überkommene Raumkonzepte, die moderne Lehr- und Lernprozesse ausbremsen und ein flexibles Reagieren auf Krankheiten wie Corona unmöglich machen, zeigen es überdeutlich: Neue Schulen braucht das Land!
Die anspruchsvolle Aufgabe für Kommunen und Planer lautet also: In großer Anzahl und in kurzer Zeit, qualitätsvoll und wirtschaftlich, flexible, anpassungsfähige Schulen bauen. Bereits vor der Corona-Krise hat sich ALHO gemeinsam mit auf Schulbau spezialisierten Architekten dieser Aufgabe gewidmet und einen modularen Schulbaukasten entwickelt. Mit ihm können Architekten der Schulträger und Modulbau-Experte künftig individuell auf die jeweiligen Anforderungen sowie auf die gewünschten Lehr- und Lernkonzepte hin zugeschnittene, individuelle Gebäude entwerfen – in hoher Qualität, zum Festpreis und zum Fixtermin.
Da bei Clusterschulen anders als in konventionellen Flurschulen die einzelnen Klassen in separate Einheiten, die sogenannten Cluster aufgeteilt sind, die jeweils nur von einer kleineren Anzahl von Schülerinnen und Schülern genutzt werden, können diese ohne Gesundheitsgefahr gleichzeitig im Gebäude anwesend sein und sich in Gruppen räumlich separiert sicher darin bewegen. Die Flexibilität offener Raumkonzepte bietet zudem eine Vielzahl möglicher Lernsettings. So kann so auf erschwerte Lernbedingungen besser reagiert werden, als dies in klassischen Flurschulen derzeit möglich ist.
Gerade in Pandemie-Zeiten rückt hier vor allem das besonders anpassungsfähige, weil flexible Konzept der Clusterschule in den Fokus. Mit ihr kann ein Gleichgewicht zwischen konzentrierter, isolierter Einzelarbeit und kollektiver Zusammenarbeit geschaffen werden. Ohne großen Aufwand lassen sich nötige Abstandsregeln umsetzen sowie getrennte Zu- und Ausgänge organisieren. Wer künftig Clusterschulen in Modulbauweise realisiert, investiert in ein Bausystem, das die Anforderungen an Qualität und Dauerhaftigkeit erfüllt und bereits von Anfang an flexibel auf Veränderungen in der Zukunft regieren kann.
Durch das flexible und anpassungsfähige Baukastenkonzept von ALHO ergeben sich weitere wertvolle Vorteile für zukünftige Schulen:
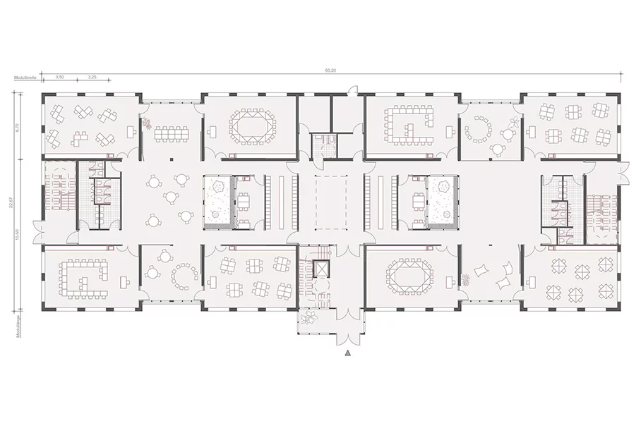
Für den modularen Schulbaukasten wurden verschiedene Typenschulen in unterschiedlichen Größen und mit variierendem Raumprogramm erarbeitet. Dabei sollen architektonischer Gestaltungswille und serielle Fertigung in einem neuen und sehr hohen Maß zusammengebracht und für die hochkomplexe und anspruchsvolle Aufgabe „Schulbau“ genutzt werden. Im Sinne eines „Baukastengedankens“ wurde die Aufgabe „Schule zukunftsfähig bauen“ von allen Seiten beleuchtet und auf ein modulares Bausystem aus vorgefertigten ALHO Raummodulen übertragen. So entstehen hochkomplexe Clusterschulen, bei denen sich kleinere Einheiten um sehr großflächigen Raumkontinuen – sogenannte „offene Lernlandschaften“ – herum gruppieren.
Wie große Legosteine werden die vom Architekten geplanten und in der ALHO-Raumfabrik vorgefertigten, dreidimensionalen Raummodule individuell zusammengesetzt. Reihung und Stapelung der auf einem orthogonalen Raster beruhenden, in sich tragfähigen Stahlelemente lassen attraktive Baukörper entstehen. Die Geometrie der Gebäude passt sich flexibel den Gegebenheiten an, wobei sich Standardisierung und der Wunsch nach Qualität, Komfort und Individualisierung nicht ausschließen. Neben den hochkomplexen Clusterschulen deckt ALHO mit dem Schulbaukasten selbstverständlich auch andere Schultypen, wie Lern- und Teamhäuser, aber auch klassische Flurschulen ab.
Durch den ausschließlichen Einsatz von gütegeprüften Materialien deutscher Markenhersteller im Innenausbau ist die Grundlage für eine gute Qualität der Innenraumluft gelegt. Was im Inneren moderner Modulbauten stattfindet, spiegelt sich auch an den Fassaden wider – mit nachhaltigen und gestalterisch wertvollen Materialien und großen Fensterflächen, die Licht und nicht zuletzt Frischluft ins Gebäude holen. Gerade bei klassischen Schultypen, die weniger Platz pro Schüler bieten, spielt der Aspekt des Lüftens eine besonders wichtige Rolle. Hier sind in Hinblick auf gute Luftqualität große Fensteröffnungen die einfachste Methode: Sie sorgen für eine gute Durchlüftung und für einen schnellen, unkomplizierten und effektiven Luftaustausch auf klassischem, mechanischem Weg. Doch in der kalten Jahreszeit sind stetig geöffnete Fenster keine Option mehr. ALHO stattet Schulgebäude deshalb mit modernen, effektiven und smarten Lüftungsanlagen aus, die eine kontinuierliche, konditionierte Frischluftzufuhr gewährleisten und mit hocheffektiven Filtern ausgestatteten sind, wie sie auch bei luftdicht konzipierten Passivgebäuden Einsatz finden. Sie sind sehr energiesparend und verfügen über eine effiziente Wärmerückgewinnung.
Automatisierung durch smarte Gebäudetechnik, wie die berührungslose Steuerung von Beleuchtung, Temperatur und Sonnenschutz mindert eine Ansteckungsgefahr zusätzlich und unterstützt die notwendigen Hygienekonzepte. So können Türgriffe, Armaturen, Möbel und Wand-Oberflächen aus antibakteriellen Materialien bestehen. Auch was die mediale Schulausstattung betrifft, ist ALHO ein kompetenter Planungs- und Ausstattungspartner, der jedes gewünschte Setting umsetzen kann: Mit Präsentationseinrichtungen und Whiteboards für die Lehrer, Dokumentenkameras, Audiosystemen und der Möglichkeit für Schülerinnen und Schüler, digitale Geräte wie Notebooks, Tablets und Smartphones zu nutzen.
Neue Schulen für die Zukunft bauen: Modulare Schulgebäude von ALHO bieten Planern, kommunalen wie privaten Bauherren optimale Voraussetzungen.
Für kommunale Auftraggeber bedeutet das serielle Bauen eine zügige und risikofreie Projektumsetzung ihrer Bauaufgaben. Wird ein Modulgebäude in Auftrag gegeben, erbringen Modulbauunternehmen wie die ALHO Systembau GmbH eine schlüsselfertige Leistung und liefern „ein Stück Gebäude” zum Pauschalpreis. Das Modulbauunternehmen bindet alle dafür nötigen Einzelgewerke in seine Fertigungsprozesse ein. Will ein öffentlicher Bauherr in Modulbauweise bauen, kommt daher nur eine GU-Vergabe in Frage. Aber genau davor schrecken öffentliche Auftraggeber oft zurück – sei es aus Sorge vor Rüge- und Nachprüfungsverfahren oder weil sie fürchten, dass die GU-Vergabe als Vergabeverstoß durch einen Fördermittelgeber gewertet wird. Zu Unrecht, denn gerade bei öffentlichen Bauvorhaben kann es durchaus gerechtfertigt sein, einen Generalunternehmer mit der Auftragsausführung zu betrauen. Für kommunale Auftraggeber bedeutet das serielle Bauen eine zügige und risikofreie Projektumsetzung ihrer Bauaufgaben.
Wird ein Modulgebäude in Auftrag gegeben, erbringen Modulbauunternehmen wie die ALHO Systembau GmbH eine schlüsselfertige Leistung und liefern „ein Stück Gebäude” zum Pauschalpreis. Das Modulbauunternehmen bindet alle dafür nötigen Einzelgewerke in seine Fertigungsprozesse ein. Will ein öffentlicher Bauherr in Modulbauweise bauen, kommt daher nur eine GU-Vergabe in Frage. Aber genau davor schrecken öffentliche Auftraggeber oft zurück – sei es aus Sorge vor Rüge- und Nachprüfungsverfahren oder weil sie fürchten, dass die GU-Vergabe als Vergabeverstoß durch einen Fördermittelgeber gewertet wird. Zu Unrecht, denn gerade bei öffentlichen Bauvorhaben kann es durchaus gerechtfertigt sein, einen Generalunternehmer mit der Auftragsausführung zu betrauen.
Telefon: +49 2131 29837-11
Mobil: +49 170 8045213
E-Mail: sebastian.trautermannnoSpam@alhonoSpam.com
Teilen Sie diesen Artikel gerne